5' x 6' NorthStar Outdoor
Finnleo® Saunas
The stunning Nordic White Spruce interior can provide the perfect, authentic Finnish sauna experience - accessible right in your own backyard.
Specs
Additional Specs
Jet Systems
More Details
Features
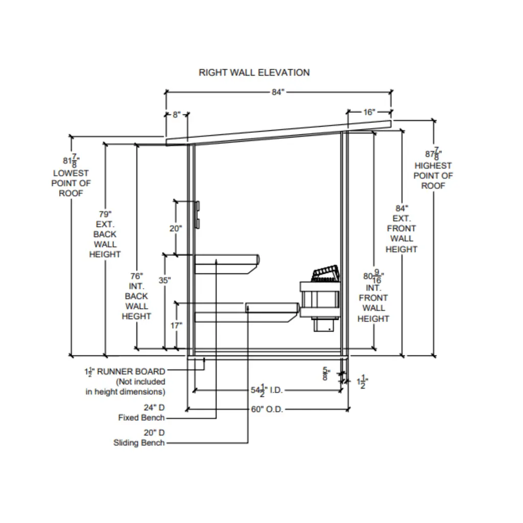
Dimensions
72" W x 60" D x 90" H
Sauna Size
5' x 6'
Material
Nordic White Spruce interior and exteriornAbachi or clear Aspen benches and backrests
Effect (kW)
6.0
Voltage
240
Amps
25
###additionalSpecs###
###jetsystems###
Seating capacity: 2-4
Heater: Designer-SL2
Lighting: In-backrest low voltage + color therapy system
Floor: Integral waterproof vinyl surface
Roof: Metal roof kit included
Accessories: RENTO Pisara bucket & ladle
Optional Add-On: Bluetooth sound system
###features###
